新房
二手房
租房
找小区
地图找房
App下载
中介登录
房东发布
资讯
交易报告
特别关注
专家问答
贷款相关
楼盘
楼盘大全
网友点评
新房动态
排行榜
房源
出售房源
中介出租
房东出租
求购信息
求租信息
合租房源
房价
小区房价
经 纪 人
学 区 房
行业招聘
您的位置:
张家港房产网
>
张家港二手房
>
乘航二手房
>
祥生金麟府
> 捡漏急卖!祥生金麟府上叠东边户178平毛坯双车位 228万元
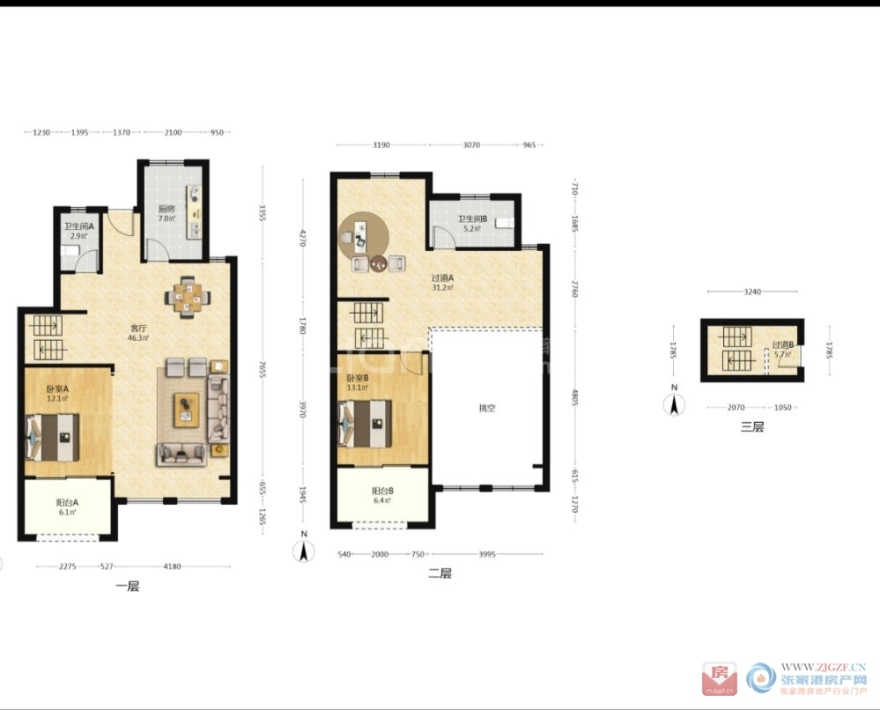
捡漏急卖!祥生金麟府上叠东边户178平毛坯双车位 228万元
举报假房源
二手房合同
房贷计算器
房价评估
小区详情
同小区租房
同小区出售
2025房价走势
急卖
本房低于小区平均价50万
228
万元
(首付约68万,月供8002元)
房主急售
多图房源
叠加别墅
户型
178平米
建筑面积
12808元/㎡
单价
特价房
房源性质
7楼
楼层(共8楼)
空房未装
装修
小区信息
祥生金麟府
(
租房11套
、
出售232套
)
本月均价
15626元/㎡
祥生金麟府房价走势(2022至2025年)>
李女士
家庆房产小李
(第8年
成交0套
)
在线交流
请用微信扫一扫跟我联系
或加我QQ:624655075
13584473701
预约看房
房源详情
(更新时间:2025/11/19 23:21:29)
房源编号
13712594
发布时间
2天前
更新时间
2天前
访问人数
16次
有效期限
30天
幼儿学区
梁丰幼儿园东园区
小学学区
实验小学乘航校区
初中学区
第一中学东校区
捡漏急卖!祥生金麟府上叠东边户178平毛坯双车位 228万元, 本房首付约34万,贷款金额约194万,月供约9716元;本房总报价低于小区平均价50万;物超所值,欢迎来电咨询,如有虚假请
立刻举报
或
跟网站客服聊天投诉
如果本房源已成交,或存在价格虚标、图文描述不实等情况,请
告诉网站管理员
(手机看房:http://m.zjgzf.cn/zjgzf/13712594_sale.html)
祥生金麟府小区信息
查看更多
小区状态
现房已交付
参考均价
15626
元/平米
去年同期
17249
元/平米
同比趋势
跌9.41%
物业类型
乘航住宅地产
访问热度
262575人次
在售套数
232套
出租套数
11套
小区地址
东二环与沈巷路交汇处金麟府(金麟荟庭)
祥生金麟府最近成交(含网签挂牌)
查看更多
(
出售
)祥生金麟府成套住宅142.22平方 (来自网签挂牌)
合同号:2025ZJG291490
183.8万
12923元/㎡
成交日期
29天前
(租房)祥生金麟府1楼125平方 精致装修
合同号:zjrent4607314
35000元/年
2916元/月
成交日期
2023/10/22
(
出售
)祥生金麟府15幢13楼98.61平方 精致装修 另加汽车位
合同号:sale2500109
169万
17138元/㎡
成交日期
2022/12/12
祥生金麟府小区出售价格趋势
查看更多
祥生金麟府小区实景图片
查看更多
手机看房请扫我
本店更多出售
好房推荐!湖悦天境下叠248平毛坯下三上二户型不是前排大院子满两年 有车位338万
1楼
248㎡
338
万元
好房推荐!湖悦天境下叠边户242平全新毛坯下三上二户型超大侧院加前院有车位368万 368万元
1楼
242㎡
368
万元
好房推荐!世茂九溪墅临河E墅334平,全新毛坯+北露台150平双车位 568万元
2楼
334㎡
568
万元
整个小区只有一套豪华精装在卖!国泰润园双拼397平豪装了800多万,现诚心卖1680万1680万元
1楼
497㎡
1680
万元
李女士(家庆房产小李)的评价(已有0条)
查看更多(0条)
李女士
留言昵称:
留言电话:
综合评分:
强烈推荐买房租房就找他
在认识的经纪里算优秀的
服务一般 普普通通
比较差劲 服务让我并不满意
评价类型:
好评
中评
差评
你可能感兴趣的同价位出售
查看更多出售>>
便宜19万
中联铂悦 100平方花园, 1
复式/跃层
178㎡
209
万元
便宜12万
碧桂园翡翠湾 24楼 169平
大平层
169㎡
216
万元
便宜13万
工抵房 楼层可选 花语天著
四室
143㎡
215
万元
贵19万
中联皇冠电梯洋房162平 精致
四室
162㎡
247
万元
便宜8万
阳光春晓 11楼 147平方
四室
147㎡
220
万元
你可能感兴趣的附近小区
查看更多小区>>
建发泱誉
(均价:14631元)
勤星苑北区
(均价:5501元)
香港城
(均价:7080元)
攀华国际广场
(均价:5825元)
兴华豪苑
(均价:8249元)
特别声明:
本站所发布的二手房信息、租房信息及图片均由网友和房产经纪提供,其真实性、合法性由信息发布人负责,张家港房产网(www.zjgzf.cn)负责及时审核,但是难免仍会有疏漏之处,如已经对您造成了不便敬请谅解,并请及时致电反馈。
发布
App
手机扫一扫
安装APP
小程序
微信扫一扫
使用小程序
客服
微信添加我为好友
点击与我直接聊天
顶部