新房
二手房
租房
找小区
地图找房
App下载
中介登录
房东发布
资讯
交易报告
特别关注
专家问答
贷款相关
楼盘
楼盘大全
网友点评
新房动态
排行榜
房源
出售房源
中介出租
房东出租
求购信息
求租信息
合租房源
房价
小区房价
经 纪 人
学 区 房
行业招聘
您的位置:
张家港房产网
>
张家港二手房
>
市中心二手房
>
小河坝新村
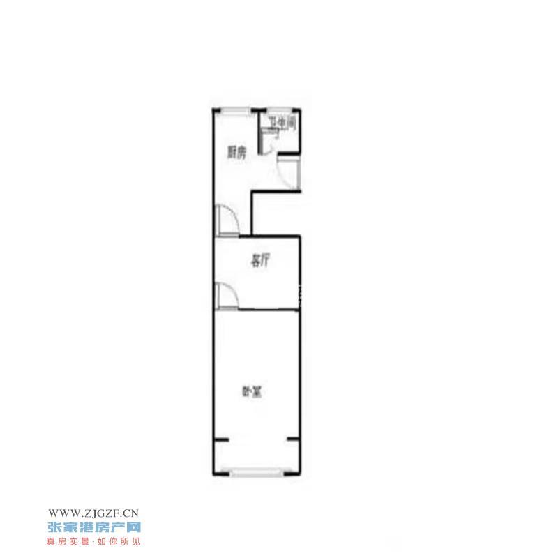
> 小河坝新村 带30平方院子 50平方 精致装修 二室 63万元
小河坝新村 带30平方院子 50平方 精致装修 二室 63万元
举报假房源
二手房合同
房贷计算器
房价评估
小区详情
同小区租房
同小区出售
2025房价走势
63
万元
(首付约19万,月供2211元)
学区房
投资首选
房主急售
有院子
多图房源
二室
户型
50平米
建筑面积
12600元/㎡
单价
店内登记
房源性质
1楼
楼层(共6楼)
精致装修
装修
小区信息
小河坝新村
(
租房48套
、
出售74套
)
本月均价
10692元/㎡
小河坝新村房价走势(2022至2025年)>
秦振华
友邦秦女士
(第9年
成交1套
)
在线交流
请用微信扫一扫跟我联系
或加我QQ:2782112519
13962470811 17798678786
预约看房
房源详情
(更新时间:2025/11/20 21:26:21)
房源编号
13702209
发布时间
17天前
更新时间
1天前
访问人数
32次
有效期限
30天
幼儿学区
暨阳幼儿园
小学学区
云盘小学
初中学区
第二中学
小河坝新村 带30平方院子 50平方 精致装修 二室 63万元, 本房首付约9万,贷款金额约54万,月供约2685元;
如果本房源已成交,或存在价格虚标、图文描述不实等情况,请
告诉网站管理员
(手机看房:http://m.zjgzf.cn/zjgzf/13702209_sale.html)
小河坝新村小区信息
查看更多
小区状态
现房已交付
参考均价
10692
元/平米
去年同期
10246
元/平米
同比趋势
涨4.35%
物业类型
市中心住宅地产
访问热度
970082人次
在售套数
74套
出租套数
48套
小区地址
张家港市小河坝西路
小河坝新村最近成交(含网签挂牌)
查看更多
(
出售
)小河坝新村成套住宅85.73平方 (来自网签挂牌)
合同号:2025ZJG257618
60万
6998元/㎡
成交日期
42天前
(租房)小河坝新村2楼100平方 精致装修
合同号:zjrent5001466
14000元/年
1166元/月
成交日期
2025/8/14
(
出售
)小河坝新村76幢6楼86.6平方 (来自网签挂牌)
合同号:2025ZJG683571
78万
9006元/㎡
成交日期
2025/8/3
小河坝新村小区出售价格趋势
查看更多
小河坝新村小区实景图片
查看更多
手机看房请扫我
本店更多出售
公园八号 4楼 104平方 精致装修 三室 118万元
4楼
104㎡
118
万元
江南十二府 16楼 带车位 102平方 精致装修 三室 99万元
16楼
102㎡
99
万元
阳光春晓 8楼 直接领证 177平方 精致装修 大平层 258万元
8楼
177㎡
258
万元
阳光春晓 10楼 直接领证 177平方 精致装修 大平层 258万元
10楼
177㎡
258
万元
秦振华(友邦秦女士)的评价(已有0条)
查看更多(0条)
秦振华
留言昵称:
留言电话:
综合评分:
强烈推荐买房租房就找他
在认识的经纪里算优秀的
服务一般 普普通通
比较差劲 服务让我并不满意
评价类型:
好评
中评
差评
你可能感兴趣的同价位出售
查看更多出售>>
贵2万
张家港市梁丰路龙潭新村2楼 5
二室
52㎡
65
万元
便宜1万
御景天成(玉景天筑) 4楼 8
三室
89㎡
62
万元
贵16万
急售 苏华新村 3楼 105平
二室
105㎡
79
万元
贵1万
泗兴佳苑 12楼 138平方
三室
138㎡
63.8
万元
贵4万
诚意急售可谈 七里庙小区二区
三室
140.72㎡
66.66
万元
你可能感兴趣的附近小区
查看更多小区>>
港城大道
(均价:16990元)
西门北村
(均价:9476元)
亨通广场
(均价:10396元)
沙工新村
(均价:8206元)
前溪锦苑
(均价:10180元)
特别声明:
本站所发布的二手房信息、租房信息及图片均由网友和房产经纪提供,其真实性、合法性由信息发布人负责,张家港房产网(www.zjgzf.cn)负责及时审核,但是难免仍会有疏漏之处,如已经对您造成了不便敬请谅解,并请及时致电反馈。
发布
App
手机扫一扫
安装APP
小程序
微信扫一扫
使用小程序
客服
微信添加我为好友
点击与我直接聊天
顶部