新房
二手房
租房
找小区
地图找房
App下载
中介登录
房东发布
资讯
交易报告
特别关注
专家问答
贷款相关
楼盘
楼盘大全
网友点评
新房动态
排行榜
房源
出售房源
中介出租
房东出租
求购信息
求租信息
合租房源
房价
小区房价
经 纪 人
学 区 房
行业招聘
您的位置:
张家港房产网
>
张家港二手房
>
金港二手房
>
金港镇滨江御园
> 滨江御园 朝南 正规商品房 有电梯 高楼层视野好
滨江御园 朝南 正规商品房 有电梯 高楼层视野好
举报假房源
二手房合同
房贷计算器
房价评估
小区详情
同小区租房
同小区出售
2025房价走势
169
万元
(首付约51万,月供5931元)
投资首选
房主急售
多图房源
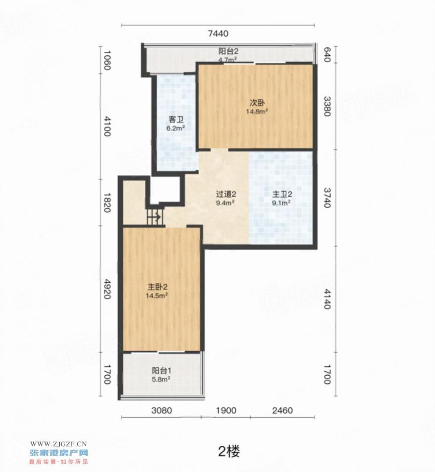
四室
户型
163.67平米
建筑面积
10325元/㎡
单价
店内登记
房源性质
1楼
楼层(共5楼)
空房未装
装修
小区信息
金港镇滨江御园
(
租房0套
、
出售64套
)
本月均价
8932元/㎡
金港镇滨江御园房价走势(2022至2025年)>
万居客硕
万居客硕成店
(第7年
成交0套
)
在线交流
请用微信扫一扫跟我联系
或加我QQ:373098432
18151581317 13913615917
预约看房
房源详情
(更新时间:2025/11/21 19:19:44)
房源编号
13667808
发布时间
64天前
更新时间
23小时前
访问人数
13次
有效期限
30天
幼儿学区
金香幼儿园
小学学区
金港中心小学
初中学区
港区初级中学
滨江御园 朝南 正规商品房 有电梯 高楼层视野好, 本房首付约25万,贷款金额约144万,月供约7202元;
如果本房源已成交,或存在价格虚标、图文描述不实等情况,请
告诉网站管理员
附近商圈成熟,离 近,看房方便,房东诚心出售......
(手机看房:http://m.zjgzf.cn/zjgzf/13667808_sale.html)
金港镇滨江御园小区信息
查看更多
小区状态
现房已交付
参考均价
8932
元/平米
去年同期
9567
元/平米
同比趋势
跌6.64%
物业类型
金港住宅地产
访问热度
194267人次
在售套数
64套
出租套数
0套
小区地址
金港中港南路与蟠港东路交汇处圆融地块(滨港玉园)
金港镇滨江御园最近成交(含网签挂牌)
查看更多
(
出售
)金港镇滨江御园15幢15楼99.21平方 (来自网签挂牌)
合同号:2024ZJG882207
105万
10583元/㎡
成交日期
3天前
(
出售
)金港镇滨江御园成套住宅99.21平方 (来自网签挂牌)
合同号:2025ZJG221166
67万
6753元/㎡
成交日期
80天前
(
出售
)金港镇滨江御园成套住宅135.48平方 (来自网签挂牌)
合同号:2025ZJG619249
81.5万
6015元/㎡
成交日期
80天前
金港镇滨江御园小区出售价格趋势
查看更多
金港镇滨江御园小区实景图片
查看更多
手机看房请扫我
本店更多出售
建发御璟湾(西区) 精装三房,全屋中央空调,看中好谈!
23楼
89㎡
75.8
万元
建发御景湾,精装修拎包入住交通便利,周边商圈成熟诚心出售
22楼
87.92㎡
76
万元
送!汽车库,好!楼层!金香 全新装修,拎包入住!
23楼
125㎡
78.8
万元
商业配套齐全 满二 近医院 双卫 产权清晰 高楼层采光充足
6楼
134.22㎡
35
万元
万居客硕(万居客硕成店)的评价(已有0条)
查看更多(0条)
万居客硕
留言昵称:
留言电话:
综合评分:
强烈推荐买房租房就找他
在认识的经纪里算优秀的
服务一般 普普通通
比较差劲 服务让我并不满意
评价类型:
好评
中评
差评
你可能感兴趣的同价位出售
查看更多出售>>
贵17万
人民路旁 兴鸿豪园 2楼 28
叠加别墅
283㎡
185.8
万元
便宜11万
前溪锦苑,15楼,142平+自
三室
142㎡
158
万元
便宜11万
前溪锦苑,15楼,142平+自
三室
142㎡
158
万元
贵20万
万科城市之光/公园大道 9楼
四室
143㎡
189
万元
贵14万
工抵房 花语天著 14楼 1
三室
132㎡
183
万元
你可能感兴趣的附近小区
查看更多小区>>
海港明珠
(均价:5707元)
映月台
(均价:7037元)
中联悦江山
(均价:14503元)
河畔美墅
(均价:10402元)
云悦时光
(均价:7490元)
特别声明:
本站所发布的二手房信息、租房信息及图片均由网友和房产经纪提供,其真实性、合法性由信息发布人负责,张家港房产网(www.zjgzf.cn)负责及时审核,但是难免仍会有疏漏之处,如已经对您造成了不便敬请谅解,并请及时致电反馈。
发布
App
手机扫一扫
安装APP
小程序
微信扫一扫
使用小程序
客服
微信添加我为好友
点击与我直接聊天
顶部