新房
二手房
租房
找小区
地图找房
App下载
中介登录
房东发布
资讯
交易报告
特别关注
专家问答
贷款相关
楼盘
楼盘大全
网友点评
新房动态
排行榜
房源
出售房源
中介出租
房东出租
求购信息
求租信息
合租房源
房价
小区房价
经 纪 人
学 区 房
行业招聘
您的位置:
张家港房产网
>
张家港二手房
>
锦丰二手房
>
锦绣新村
> 1205锦绣新村 4楼 98.86平方 精致装修 二室 39万元
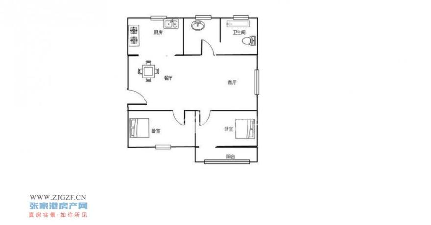
1205锦绣新村 4楼 98.86平方 精致装修 二室 39万元
举报假房源
二手房合同
房贷计算器
房价评估
小区详情
同小区租房
同小区出售
2025房价走势
东边户,满五唯一税费低,单价3945元
39
万元
(首付约12万,月供1369元)
多图房源
二室
户型
98.86平米
建筑面积
3944元/㎡
单价
特价房
房源性质
4楼
楼层(共5楼)
精致装修
装修
小区信息
锦绣新村
(
租房0套
、
出售1套
)
本月均价
3945元/㎡
锦绣新村房价走势(2022至2025年)>
富竹房产
富竹信息
(第8年
成交5套
)
在线交流
请用微信扫一扫跟我联系
或加我QQ:2459526017
13390830837
预约看房
房源详情
(更新时间:2025/11/21 19:23:08)
房源编号
13655442
发布时间
77天前
更新时间
23小时前
访问人数
28次
有效期限
30天
幼儿学区
锦丰中心幼儿园
小学学区
锦丰中心小学
初中学区
锦丰初中
1205锦绣新村 4楼 98.86平方 精致装修 二室 39万元, 本房首付约6万,贷款金额约33万,月供约1662元;
如果本房源已成交,或存在价格虚标、图文描述不实等情况,请
告诉网站管理员
满五唯一税费低
(手机看房:http://m.zjgzf.cn/zjgzf/13655442_sale.html)
锦绣新村小区信息
查看更多
小区状态
现房已交付
参考均价
3945
元/平米
去年同期
0
元/平米
同比趋势
涨0.00%
物业类型
锦丰住宅地产
访问热度
98129人次
在售套数
1套
出租套数
0套
小区地址
锦丰镇青园路与锦阳河路交叉口(原教工宿舍区域)
锦绣新村最近成交(含网签挂牌)
查看更多
近期暂无成交信息或未有机构上传
锦绣新村小区出售价格趋势
查看更多
锦绣新村小区实景图片
查看更多
手机看房请扫我
本店更多出售
0207降价15万啦!湖滨水岸 9楼 141.46平方+车位 精装 三室 110万元
9楼
141.46㎡
110
万元
0520降价7.2万啦!大南花苑 4楼 121.43平方 简装 三室 47.8万元
4楼
121.43㎡
47.8
万元
0520降价22万啦!恒大雅苑 26楼 151.75平方+车位 精装 三室 116万元
26楼
151.75㎡
116
万元
1231青禾暨阳府上叠加 132.41平方 毛坯 220万元
4楼
132.41㎡
220
万元
富竹房产(富竹信息)的评价(已有1条)
查看更多(1条)
富竹房产
留言昵称:
留言电话:
综合评分:
强烈推荐买房租房就找他
在认识的经纪里算优秀的
服务一般 普普通通
比较差劲 服务让我并不满意
评价类型:
好评
中评
差评
你可能感兴趣的同价位出售
查看更多出售>>
贵19万
振兴花苑 6楼 88平方 二室
二室
88㎡
58
万元
便宜7万
乐余镇公园新村 2楼 81平方
三室
81㎡
32
万元
贵21万
旺西花园2楼95平60万,急售
二室
95.6㎡
60
万元
贵9万
中联铂悦 9楼 51平方 精致
单套
51㎡
48
万元
贵11万
龙潭新村 4楼 60平方 精致
二室
60㎡
49.8
万元
你可能感兴趣的附近小区
查看更多小区>>
锦都中央广场
(均价:6250元)
玖隆花苑
(均价:4024元)
锦丰新村
(均价:3583元)
海沙二村
(均价:3550元)
厚生二村
(均价:3898元)
特别声明:
本站所发布的二手房信息、租房信息及图片均由网友和房产经纪提供,其真实性、合法性由信息发布人负责,张家港房产网(www.zjgzf.cn)负责及时审核,但是难免仍会有疏漏之处,如已经对您造成了不便敬请谅解,并请及时致电反馈。
发布
App
手机扫一扫
安装APP
小程序
微信扫一扫
使用小程序
客服
微信添加我为好友
点击与我直接聊天
顶部